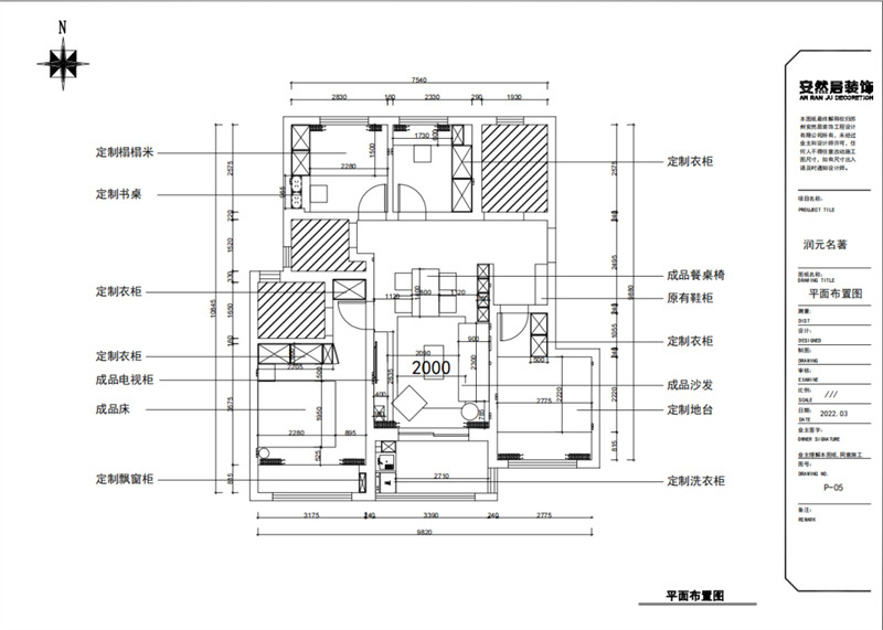
项目地址 Project address / 润元名著雅苑
项目面积 Project area / 100㎡
设计主案 Master Designer / 精装团队
设计风格 Design style / 现代简约

良缘永结,匹配同称。
看此日桃花灼灼,宜室宜家;
卜他年瓜瓞绵绵,尔昌尔炽。
谨以白头之约,书向鸿笺,
好将红叶之盟,载明鸳谱。
——引用自民国证婚词——

每一套房子都是一段新生活的开始,在过去,安然居装饰见证了太多幸福的案例,这一对也不例外,瑾以这几年大火的证婚词送给我们即将踏入婚姻的业主小姐姐,愿永结同心。最好的设计风格,就是把一切自己喜欢的东西放进来,不为悦人,只为悦己。对于这位业主小姐姐来说,最是贴切不过。从来不知道,一套100㎡的精装房,可以做出这么多小心思出来,在这一点上,我们的精装团队从来不会让人失望。精装改造,难的从来都不是配色,而是那种空间打造出来的质感,现有结构不能动,那就要从细节着手,感觉从来都是极其玄妙的,一套房子的设计如果只顾眼前,那可太得不偿失了,所以空间一定是尽可能多变。谈到多变,就不得不提到本案例中的南次卧,一室风华,可宜居,可小聚,多变的空间从来不是说说,要看设计师的用心程度。至于细节嘛,看到门口的鞋柜了吗?拉开既是换鞋凳 ,妙哉!我们平凡人,终其一生都在寻找幸福,单是遇到爱的人,不管在哪,都觉得生活很甜,未来很期待,晚风也好,凉风也罢,都想偷偷的笑。

一踏进玄关,细节感满满,精致柔和的温润质感扑面而来,鞋柜分割层次分明,不用刻意去收纳便是随性家居生活的开始。

让室外光线尽可能引入,是对居住者最大的尊崇。
奶油色的沙发,米白色的懒人椅,让光线得以施展开,作为家的聚焦地,你葛优躺,我闲坐,撸个猫,看个书,惬意如斯!

客餐厅一体,这是一处场景治愈风,现代风带给人们最多的感觉便是简单和随意。
木地板像个谦谦君子般承担着更多自然所带来的的质感,小户型最好的设计就是留白,给居住者更多的舒适和可以后期打造的空间。

食是餐厅,慢下来,与爱人一道做两道饭菜,随着自己的心,构筑自己向往的这个餐厅空间,岩板的桌面和喜欢的绿植与菜香味相互交错,给日后的回忆带去的都是一丝甜。

换个角度看世界,一室芳华,每一处都是留下我们生活的痕迹。

电视背景的极简打破传统背景一定要装饰的味道,收纳的增加又更好的协调了客厅储物的问题。
闭眼是放松,睁开便汲取力量,面对未来生活的章节。

卧室很优雅。从这能看出这一对相爱的人的性格,低调不张扬、不随波逐流却很严谨、克制而个性,也是现在为数不多的崇尚生活本质的思考和回归的这一类人群。温润的卡其色永远是他们的心头好!

卫生间属于紧凑型结构,也是一种恰到好处的自然平衡。