业主之前装修过好几套房子,对工艺及审美都有很高要求。一楼想要南北通透,对现有厨房卫生间位置不满意,保留一个父母房的同时想把洗衣机放卫生间;二楼主卧想要一个超大的卫生间套房同时想留有投影功能,另外留个女儿房还有独立书房。

- 平面布置图 & 原始结构图 1F -
设计改造亮点:
①一楼对调原厨房卫生间位置,使原本封闭的格局变成南北通透户型;
②通过隐形门的设计弱化了原有门洞在背景的不美观弊端;
③将洗衣机藏于楼梯下方,有效的利用了楼梯死角;
④主卧摒弃了传统的电视墙采用投影的设计方式;
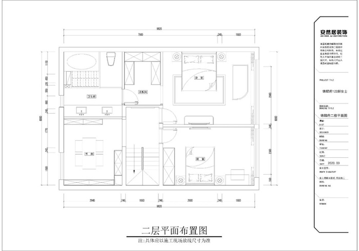
⑤10多平的卫生间集淋浴马桶台盆浴缸于一体大气实用;
⑥书房设计了一个抬高的地台仪式感满满;
⑦岩板加暗扶手楼梯设计也是本案的亮点之一;

- 平面布置图 & 原始结构图 2F -

忙碌了一整天,回到家的第一件事,就是脱掉束缚人的鞋子,让身心彻底放松下来。玄关柜拥有强大的收纳能力,底部悬空式设计能更好的掩藏日常穿着的鞋子,中部镂空设计可用于存放随手零碎物品,十分方便。玄关与餐厅两空间结合做L型收纳柜设计,整体性更强,同时也充分将空间利用起来。


家是温柔的港湾,而餐厅是生活中最有烟火气的地方,舒适围合尤为重要。石材与木质的碰撞让新中式的风格凸显,搭配个性曲线设计的座椅,营造餐厅空间其乐融融的氛围。厨房玻璃推拉门很好保持了空间的通透感。

整个空间删繁就简,将古典诗情画意与现代生活气息糅为一体,优雅大气、又不失传统文化精髓,低调素雅的颜色搭配,只以少量亮色作为点缀。在材质运用上,以温润质朴的实木为主,并加入金属、皮质、大理石等现代材质,电视背景墙自然的纹理犹如水墨画卷。


无界限的客餐厅与公共空间布局,维持整体的通透宽敞,生活动线顺畅不受限。作为统一空间,客餐厅都采用了无主灯设计,拉高层高也有利于氛围铺垫。午后阳光透过窗,缓缓地倾泻进来,家中有光景。

岩板加暗扶手楼梯设计也是本案的亮点之一,岩板本身的高级纹理质感,让楼梯踏步与扶手交相辉映,彰显高档品质生活。在楼梯这个显而易见的区域,灯光和岩板是精髓所在,光赋予了空间、环境和物体想象力。


家应该是不断构建诗意的烟火,墙面装饰延续新中式的情调,利落的线条增添时尚气息,赋予现代都市的品质感。新中式家具自带刚劲力量,加以绝佳采光性,塑造简单素净氛围,生活的美好不止于此。


整体设计稳重和谐、充满秩序,干脆利落的线条配上简单的装饰元素,将现代语言与传统文化得以圆融合一。“轻奢化”的新中式风格,陈设不过于浮夸,色彩素雅和谐,突出优雅而低调的东方式奢华。


卧室是休憩的私密空间,氛围以安静舒适和谐为主。主卧以素雅简净的居住格调舒缓疲惫于都市节奏的身心,生活于此间,无过多尘杂琐事,心净且轻,安逸闲适。卧室的金属材质用于灯饰和收纳柜的设计之中,是整个空间的点睛之笔。

主卧摒弃了传统的电视墙采用投影的设计方式,拉下幕帘就可以尽情享用视听盛宴。城市里从不缺房子,缺少的是有温度的生活,春有百花秋有月,夏有凉风冬有雪,每日当如诗。

主卧步入式衣帽间,顶天立地的设计提供大容量储物空间,卫生间整体明亮通透,采用纹理较为轻盈的岩板做了大面积铺设,让人能瞬间感受到细腻优雅的冷静,金属与镜面元素的填充,让空间质感更为饱满。

忙碌过后,寻求一处放松沉思,阅读、饮茶、弹弹吉他,安享当下的理想生活

儿童房以简洁和舒适作为主要格调,粉绿统筹着空间视觉美感,各式各样可爱精巧的摆件陈设,在空间中对话碰撞,表现出饱满而趣味的明快气质,室内处处弥漫生活的美好。
