项目地址 Project address / 泊云庭
项目面积 Project area / 132㎡
设计主案 Master Designer / 张文浩
设计风格 Design style / 现代

业主谢先生在新区上班,平时工作比较忙,所以希望能做精装全案设计,装饰公司能提供系统化及私属定制服务,刚好安然居软装设计中心就有着这样的配套服务,一拍即合。设计师与谢先生第一次见面是在家博会,因为还没拿房,当时只是简单的聊了聊,之后约好拿房当天去量尺寸。非常巧的是谢先生的亲戚之前也在我们安然居做过硬装,所以对安然居是比较信任的,签约过程非常顺利。

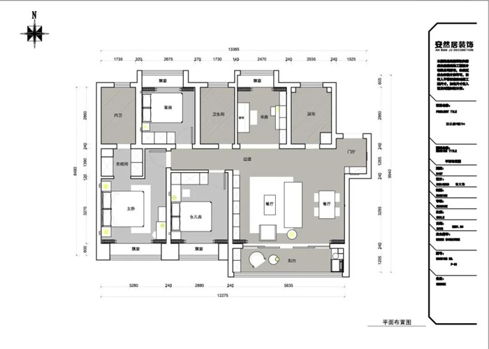
- 平面布置图 & 原始结构图 -

玄关是“家”的第一印象。通顶鞋柜设计,采用镂空加换鞋凳的组合形式,一副艺术挂画点缀,彼此相和。玄关柜镂空位置摆放着艺术摆件,既打破了立面的刻板单调又兼顾了展示功能。

收纳几乎是每个家庭的痛点,客厅区域的柜体承担了家中极大一部分的储物责任。

有了电视柜,对于茶几的储物就不需要那么高了,只需要一个小茶几,同时沙发和电视之间的过道会更宽敞些。



洗衣机和烘干机都被嵌入在柜体,还有小的台盆,方便洗洗小东西,空间充分利用,一点不浪费。生活阳台+休闲阳台的设计,既容纳琐碎日常又安放身心。

客厅因为吊顶的原因不适合做餐边柜,业主也不想做卡座,所以在鞋柜侧边做了开放格。几幅抽象挂画点缀呼应,将现代风格的韵味发挥到极致,无需过多的色彩,温馨便是生活。

开放式书房设计,书桌没有选择传统的书房做法——中间做书桌,两边书柜,因为业主女儿的钢琴也将放在这边,正对着书桌,还有一个飘窗,可供休息,工作学习间隙看看窗外景色。

女儿正在上中学,家中书籍很多,封闭式玻璃书柜+开放格设计,既能方便找书也能做展示柜,给孩子养成良好的阅读习惯。


始于舒适,而不止于舒适,步入私密的卧室空间,纯粹的灰与光影交织,一片缱绻舒展的画面拨动着悠悠心弦。拉开窗帘,追逐自然的气息,借室外明亮的光线把无限的自由保留下来,在这片纯粹无拘的空间里,睡眠也变得毫无杂质。

对于女儿房,业主要求带一点粉色,整体色调温馨。因为客户说他家的猫喜欢把窗帘当做树一样的向上爬,所以最开始窗帘也是建议选择棉麻的,但是客户还是喜欢高精密的窗帘。卧室是做梦的空间,那就让梦更轻盈一点。立体装饰挂画色彩活泼,与粉蓝拼色窗帘互相呼应,精致且生动的公仔陪伴孩子的成长,生活明朗,万物可爱。
装修咨询,请加微信:13912647392