
业主毛先生一家去年从北京过来,在苏州买房,紧接着面临装修,机缘巧合遇见了安然居。关于家的总体样貌还没有清晰的轮廓,喜欢轻奢港风,希望拥有一个温馨大气、时尚舒适的居住环境,满足生活需求。设计师以独特的审美视觉,将怀旧的港式情怀与现代生活需求相结合。不同材质与软装,点染室内的风格,烘托室内的格调,平衡居室内色彩,整个空间设计的非常自然且舒适。

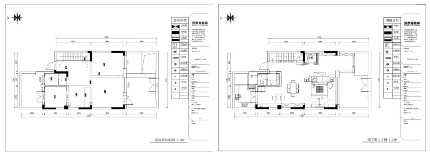
1F 原始结构图 & 平面布置图

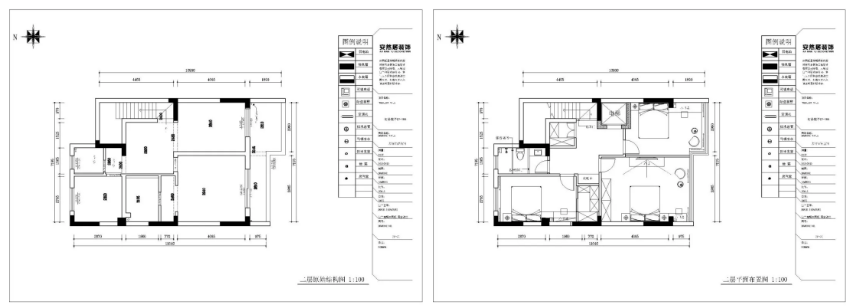
2F 原始结构图 & 平面布置图

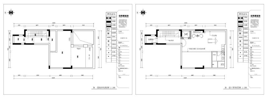
-1F 原始结构图 & 平面布置图

-2F 原始结构图 & 平面布置图
“从最初接触家装顾问,到约见设计师,在与设计师的深入沟通中能感受到设计师田甜对我们家的用心,所以决定选择安然居。整个装修过程,从设计到施工再到最后的实景呈现,都很让我们满意。”

入户位置规划了多功能鞋柜和储物空间,美好从归家这一刻开启,精致的挂画,恰到好处的点缀着门厅空间。

换上拖鞋,正式进入居家状态,温暖明亮的空间氛围,促成“归家团聚”的美好。

港式风格强调室内空间宽敞、内外通透,家具与装饰都是简洁干练的造型。木质茶几,圆润的边角避免日常刮伤、碰伤,轮廓感十足的皮质沙发舒适而不失精致。让形式更多的服务于功能,让设计更融入生活。



设计是大胆颠覆,是让普通元素变得卓尔不凡的心思。运用明朗的几何线条,在方圆之间自如游走,无处不在的金属特有光泽,让整个空间折射出一种“COOL”的质感


通过吊顶进行空间的划分,客厅+餐厅+西厨采用开放式设计,没有任何的堆砌形式,满足合理的空间动线、光照等需求,选用高质感的材质,简约明亮的配色,最大程度上释放出现轻奢港式的时尚和静谧。


餐厅在冷色调的基础上,辅之金属、水晶、鲜亮花卉挂画,对应纹理大理石,更加衬托一家人齐坐一堂和乐融融的时刻。通过配色、材质、形体的变化、呼应、对比等手法,营造出一个惬意轻松的生活氛围,既开敞自由,又自成一体;既大气实用,又考究精致。



西厨开放式设计与水吧台连接,中厨封闭更好隔绝油烟,中西厨设计让烹饪美食的流程变得井然有序,宽敞的尺度容纳下生活的百般滋味,煎炸烹煮中,传递着生活的安稳。

主卧采用视觉上跳跃又不刺眼的蓝色,调动了主色调灰色的沉稳。硬包背景墙镶嵌金属线条提升整个空间的律动感,精致的灯饰仿佛灯光不是打在床侧,而是心灵的侧面。


精巧的灯饰和别致的摆件,处处都藏着对家的细致用心。一点点填满的柜台更是在时尚潮流的基础上营造出浓郁生活气息,完美诠释了“生活美学”理念。


浅咖色的木质地板与灰白色墙面交相辉印,低饱和度色彩营造空间质感,粉蓝软装简单舒适 ,打造出现代轻奢港式的高雅,有生活,有温度。


柔软的床品,有着航天元素的儿童房,凸显着孩子的个性与童真


卫生间的设计追求实用功能,和谐整体的空间感让人心情愉快,真正做到温馨和舒适充斥每一个角落。