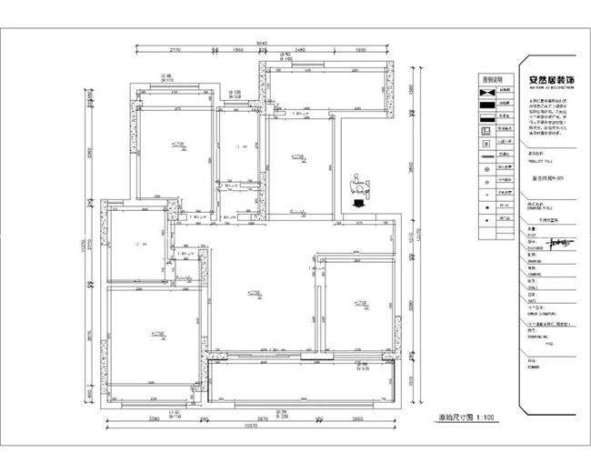
项目地址 Project address / 金兰尚苑
项目面积 Project area / 120㎡
设计风格 Design style / 现代轻奢
业主说:“我们是去年10月份挑选装修公司时,机缘巧合遇到安然居的。从最初接触家装顾问,到约见设计师,然后到装修现场的施工经理,都给予我们一种温和踏实的感觉,尤其是设计师的设计确实令我们感到新颖和别具一格。现在新房装修完美结束,实景也给我们带来出类拔萃的效果,感谢安然居所有的工作人员,辛苦啦!”

设计说明:
①入户门处做了加宽处理,增加鞋柜储物空间;
②将原本在电视背景墙的儿童房门调整到阳台处,让电视背景墙的整体效果更好体现,同时增加儿卧空间;
③在卫生间和客厅之间做了储物柜,增加储物的同时也作装饰隔断用,避免了外卫门对着客厅的小尴尬;
④内卫大但实际使用率不高,改了一个衣帽间出来,增加主卧储物。

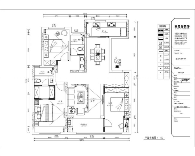
美好源自贴心,正如入户左边的通顶玄关柜设计,玄关结构看似简单,但是实用性满点,尤其是设计师对玄关做了加宽处理后,增大了储物空间。一副艺术挂画与顶天立地的玄关柜彼此相和,虚实相生。一个有温度的“家”,便从玄关开始。


客厅作为家的公共区,更是展示自我气质的区域,要符合居住者的个性。以木栅栏做底,带有大理石纹理的岩板为表,共同构筑起电视背景墙的模样,竖条纹与块面感十足的岩板结合,带来极强的凹凸韵律感,装饰性十足。




设计师通过与屋主不断的沟通,了解其审美需求与生活方式,摈弃一切冗余,保留最核心的设计表达,运用皮革、大理石、金属、原木等材质,营造出一种现代+轻奢的居家氛围,给居住者带来雅致的居住体验。


幸福,就在于创造新的生活。”而在某种意义上,新的生活有赖于一个舒适的空间,从功能、美学、体验上都能满足人的需求。屋主在最初与设计师聊关于家的装修事宜时就明确表示“不要在客厅看到卫生间门。”所以外卫和客厅之间做了储物柜,增加储物的同时也作装饰隔断用,避免了外卫门对着客厅的小尴尬。

卫生间部分改造后功能区分明,淋浴区和洗漱区分开,这样的设计使卫生间干湿分离,有利于隔离细菌,更加符合健康家居的理念。



大面积黑白灰的主调中,气质活泼的橙,作为跳色出现。这个家温柔内敛外表下,藏着活力跳脱的气质。珍惜眼下的生活,一盏茶与一碗饭的时间,都要在舒心的地方安然度过。


主卧的设计在造型和配色上与客餐厅保持一致,是女主人喜欢的高级灰调。以米白、暖咖为主,优雅的蓝色窗帘平衡两者又强调着自身的个性,它们共同营造轻松安逸的环境。


儿童房在灰调中融入蓝调,床品的色彩也以纯净的白为主。素雅清净的颜色能让人的内心感到平和。家里的宝贝女儿将在这里度过最重要的童年。每一年,这里都将会有新变化,唯一不变的是满满的温情。