项目地址 Project address / 三千邑
项目面积 Project area / 104㎡
设计风格 Design style / 美式轻奢

设计说明:
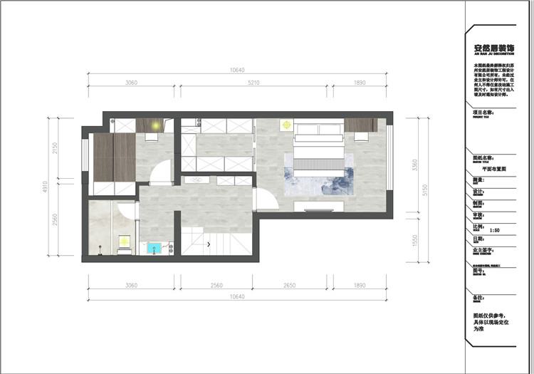
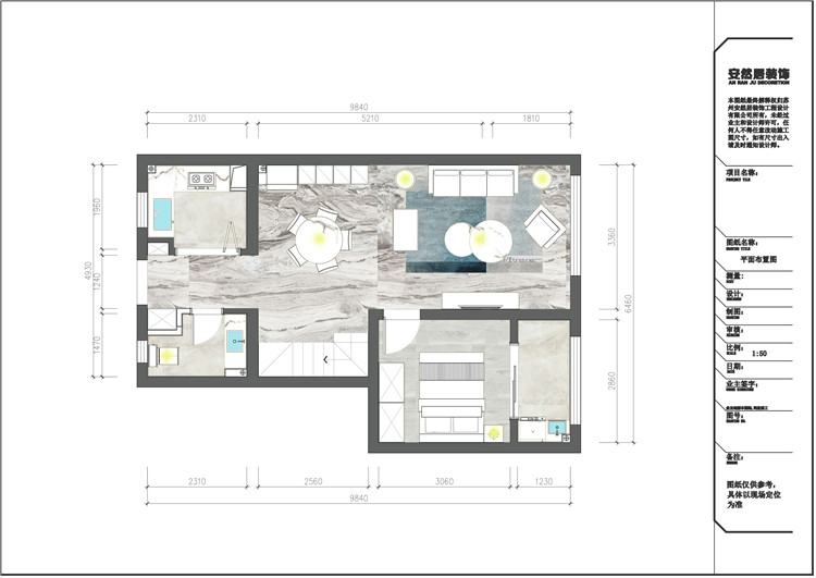
① 改变原有厨房和卫生间墙体,增加玄关区域鞋柜的收纳空间,通过地面造型砖,打造舒适便捷的入门玄关;
② 在餐厅延伸出吧台和冰箱空间,使本来小空间的厨房有更多操作台,让进出厨房动线的更舒适,加上饰柜,将原有的落水管隐藏起来,同时辅助于就餐区使用。配上整面大落地玻璃,客餐厅通透感更强,将绿道风景尽收眼底;
③ 主卧增设衣帽间,改变入口方向,形成过道端景 。

就像许许多多的年轻人期待的那样,在一个自己喜欢的城市里,默默打拼事业,遇上倾心的爱情,而后相伴走过余生。

此案例作为李先生和爱人在苏州第一套房,也是婚房设计,在众多装修公司中选择了安然居,选择了设计师张畅。性格温和的男业主,心思浪漫的女业主,对生活满满的憧憬和热爱,一个爱意浓浓、柔软治愈的家就此诞生。


米白皮质沙发+淡蓝背景墙+雅士白大理石组合茶几,圆滑边角避免碰撞,家的设计,不仅要时尚更要人性化考虑,便利舒适才能放下压力,惬意而行。

天鹅绒沙发单椅,轻柔的质感,深海的蓝,家与色彩的浪漫相遇,每一处都是靓点。
粉色小猪,柔软毛绒触感,亲肤又舒适。童心不泯,疲惫的一天有它治愈,在家可以是小大人,也能是大小孩。

蓝色多瑙河托盘+几何镜面纸巾盒+蓝金花瓶的组合,轻奢百搭,为客厅增添精致感,恰到好处的艺术摆件,总能给人视觉上的舒适体验,也能让空间更加活泼清新。
黑与白的温柔,金属的质感提升整个环境的精致感,搭配绿植装饰点缀,与灰蓝色护墙板、大理石背景墙在一起融合的刚刚好。
真正的生活就是取悦自己,提升幸福感的方式有许多种,每一个小物件都精心挑选,才能让家的一切都恰到好处。

餐厅与客厅相连,长方形大理石餐桌与灰色单椅搭配组合,聚焦视觉轴心,餐边柜不仅颜值高且展示与收纳功能兼备。

橄榄绿复古咖啡机,在家开启清新优雅的生活方式,享受无忧无虑的轻松和愉悦心情。

巧用护墙板的隐形门设计,根据不同的空间需要和风格进行整体规划,使其既有实用性,又能起到装饰作用,达到视觉统一。
主卧采光很好可以从早暖到晚,床及背景墙都延续了轻奢风格,米色的浅淡的色调不惊不扰,金色搭配平添几分优雅气息。

周末不想起床,那就躺下来彻底沦陷吧,尽情享受每个黑的夜与甜的梦。温柔的软床,理想的厅房,幸福大抵就是如此这样。

晨起梳妆,用从容的姿态开启新的一天。时光涓涓流逝,美好的印象却不曾改变,宠爱自己,取悦自己。

粉色懒人沙发,搭配雅致的圆环花瓶,置于边几之上,给生活多一点艺术,让慵懒回归日常,灵魂也要跟上身体的脚步。


安然居装饰,高品质缔造家,请在线预约